Na prodej nový apartmán s 2 ložnicemi, Vir, Chorvatsko
ID nemovitosti: CHSM24-147N
Město: Vir
Typ: Byt
Plocha: 81.08 m2
Dispozice: 3+kk
Ložnice: 2
Cena: 320 000 €
Vyřizuje:
Violeta Borisova
+420 774 865 014
violeta.borisova@alexandriareal.cz
Stav nemovitosti: Výstavba
Patro: Přízemí
Počet nadzemních podlaží: 3
Zařízen: Nezařízeno
Počet koupelen: 2
Terasa: Ano
Parkování: Venkovní vyhrazené
Vzdálenost od moře: do 200 m
Plocha pozemku: 1 m2
Popis nemovitosti
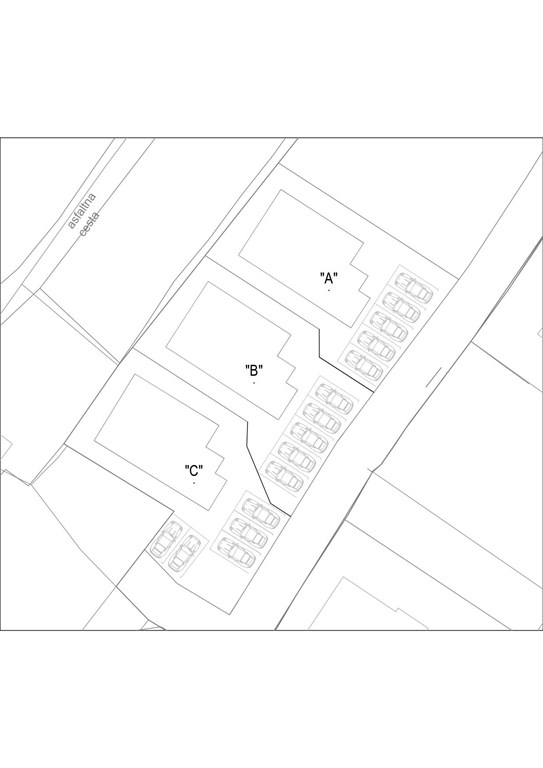
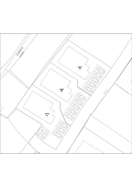
Dovolujeme si Vám nabídnout na prodej nový apartmán s 2 ložnicemi na ostrově Vir v Zadarské oblasti v Chorvatsku. Jedná se o komplex tří rezidenčních budov ve výstavbě. Každá budova sestává z přízemí a dvou pater a celkem 3 bytových jednotek - na každém podlaží je jeden apartmán. Dokončení budov A a B je naplánováno na začátek roku 2025 a dokončení budovy C na podzim roku 2025.
Apartmány budou vybaveny klimatizací v ložnicích a obývacím pokoji, elektrickým podlahovým vytápěním v koupelnách, bezpečnostními dveřmi, budou mít keramiku v celém apartmánu i na terasách, elektrické žaluzie, sítě proti komárům, interkom a LED osvětlení v apartmánu i na terasách. Nábytek v koupelnách bude vyrobený na míru a všechny terasy budou mít přípravu na jacuzzi (přívod i odvod vody). Vzdálenost od moře je přibližně 200 m.
K apartmánům v přízemí náleží komora pod schodištěm a 1 parkovací stání. K apartmánům v 1. patře náleží 2 parkovací stání. K apartmánům ve 2. patře náleží také 2 parkovací stání a celá střešní terasa.
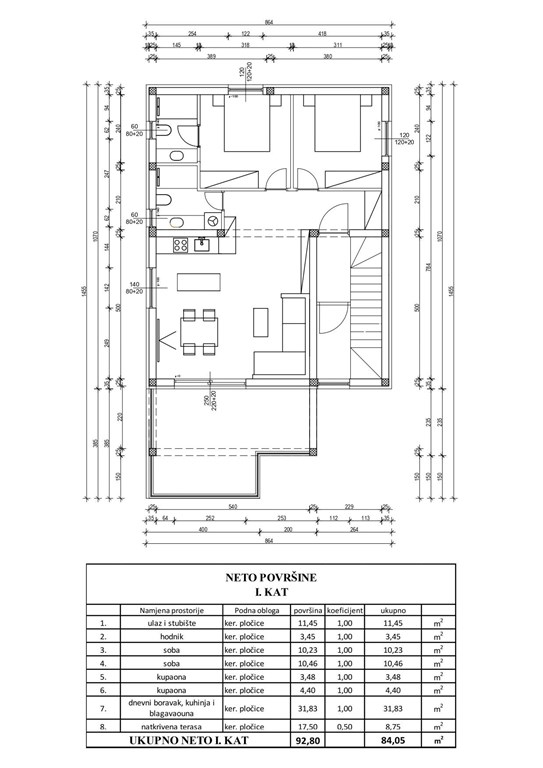
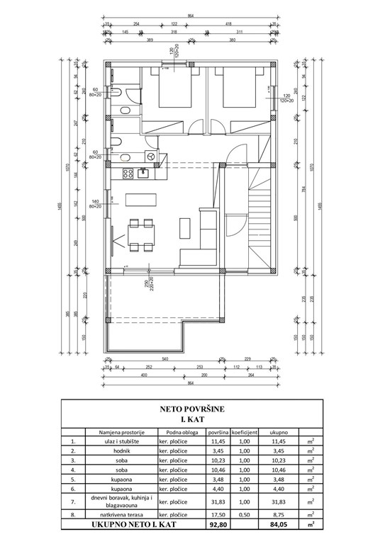
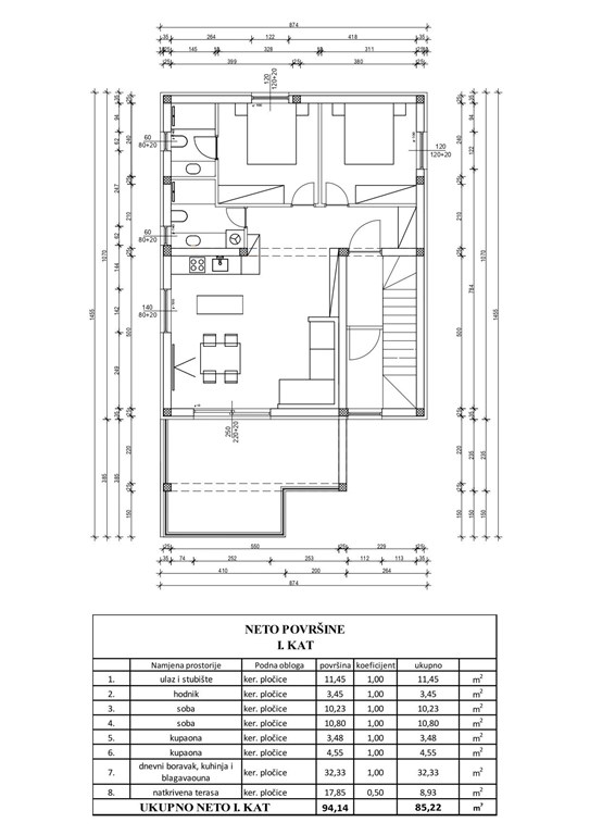
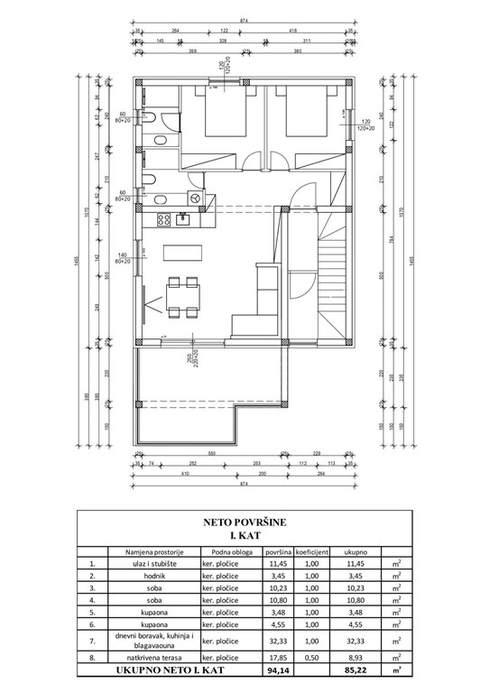
Nabízený apartmán S1 o rozloze 81,08 m2 je situovaný v přízemí budovy A. Sestává z chodby, 2 ložnic, 2 koupelen, obývacího pokoje s kuchyní a jídelnou, komory a kryté terasy o ploše 8,93 m2.
Další apartmány ke koupi:
Budova A
S1: přízemí, 81,08 m2 (chodba, 2 ložnice, 2 koupelny, obývací pokoj + kuchyň + jídelna, krytá terasa, komora, 1 parkovací místo) – 320.000 €
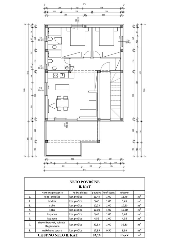
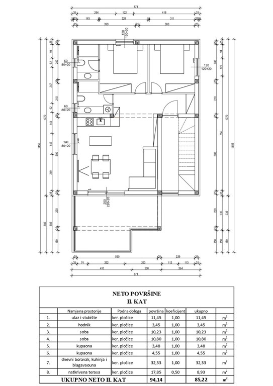
S2: 1. patro, 85,22 m2 (chodba, 2 ložnice, 2 koupelny, obývací pokoj + kuchyň + jídelna, krytá terasa, 2 parkovací místa) – 330.000 €
S3: 2. patro, 85,22 m2 (chodba, 2 ložnice, 2 koupelny, obývací pokoj + kuchyň + jídelna, krytá terasa, střešní terasa, 2 parkovací místa) – 430.000 €
Budova B
S1: přízemí, 79,92 m2 (chodba, 2 ložnice, 2 koupelny, obývací pokoj + kuchyň + jídelna, krytá terasa, komora, 1 parkovací místo) – 320.000 €
S2: 1. patro, 84,05 m2 (chodba, 2 ložnice, 2 koupelny, obývací pokoj + kuchyň + jídelna, krytá terasa, 2 parkovací místa) – 330.000 €
S3: 2. patro, 84,05 m2 (chodba, 2 ložnice, 2 koupelny, obývací pokoj + kuchyň + jídelna, krytá terasa, střešní terasa, 2 parkovací místa) – 430.000 €
Související články:
- Postup koupě chorvatských realit
- Daně a poplatky - Chorvatsko nemovitosti
- Lokality pro nemovitosti - Chorvatsko
- Naše služby pro zájemce o chorvatské nemovitosti
- Situace na trhu s nemovitostmi v Chorvatsku
- Nejčastější dotazy o koupi zahraničních realit
Vyřizuje:
Violeta Borisova
+420 774 865 014
violeta.borisova@alexandriareal.cz
Mapa zobrazuje lokalitu kde se nemovitost nachází, nikoliv její přesnou adresu.