Na prodej apartmány jen 80 m od moře, Sv. Filip i Jakov, Chorvatsko
ID nemovitosti: CHSM24-080N
Město: Sveti Filip i Jakov
Typ: Byt
Plocha: 65.2 m2
Dispozice: 3+kk
Ložnice: 2
Cena: 221 000 €
Vyřizuje:
Violeta Borisova
+420 774 865 014
violeta.borisova@alexandriareal.cz
Stav nemovitosti: Výstavba
Patro: 1. patro
Zařízen: Nezařízeno
Počet koupelen: 1
Lodžie: Ano
Parkování: Venkovní vyhrazené
Předzahrádka: Ne
Výhled na moře: Ano
Vzdálenost od moře: do 200 m
Plocha pozemku: 1 m2
Popis nemovitosti
Dovolujeme si Vám nabídnout na prodej nové apartmány jen 80 m od moře v obci Sveti Filip i Jakov v Zadarské oblasti v Chorvatsku. Apartmány se nachází v komplexu nových vil, které jsou ve výstavbě a jejichž dokončení je plánováno na březen 2025.
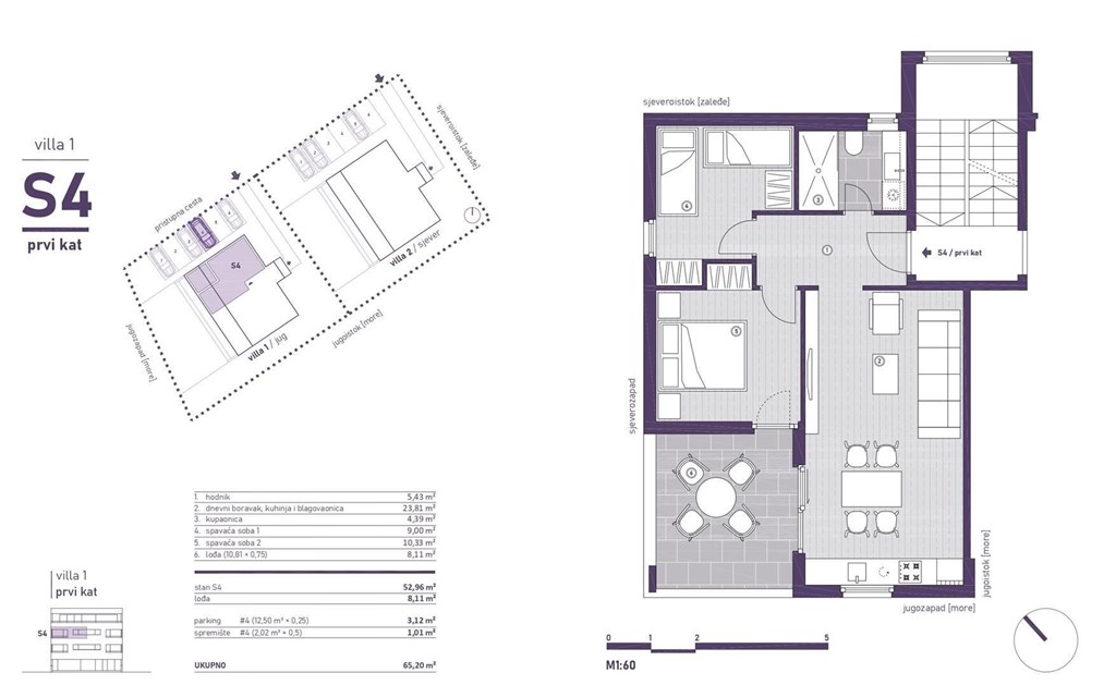
Nabízený apartmán S4 o ploše 65,20 m2 se nachází v 1. patře vily 1 a sestává z 2 ložnic, koupelny, obývacího pokoje s kuchyní a jídelnou a lodžie. Ke každému apartmánu náleží 1 parkovací místo a komora v suterénu a všechny mají výhled na moře.
Apartmány budou mít klimatizaci pro topení i chlazení, prvotřídní podlahové krytiny, keramickou dlažbu a obklady, plně vybavené koupelny, okna s dvojitými skly a moskytiérami a bezpečnostní dveře. Budovy budou mít zateplenou fasádu i střechu a připojení na vodovodní i kanalizační řád. Vzdálenost do centra je asi 400 m a k moři přibližně 80 m.
Další apartmány v komplexu ke koupi:
Vila 1
S1: suterén, 110,95 m2 (3 ložnice, 2 koupelny, obývací pokoj + kuchyň + jídelna, lodžie, parkovací místo, sklad) – 326.000 €
S4: 1. patro, 65,20 m2 (2 ložnice, 1 koupelna, obývací pokoj + kuchyň + jídelna, lodžie, parkovací místo, sklad) – 221.000 €
Vila 2
S1: suterén, 110,95 m2 (3 ložnice, 2 koupelny, obývací pokoj + kuchyň + jídelna, lodžie, parkovací místo, sklad) – 326.000 €
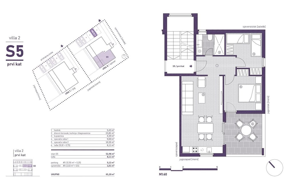
S3: 1. patro, 65,20 m2 (2 ložnice, 1 koupelna, obývací pokoj + kuchyň + jídelna, lodžie, parkovací místo, sklad) – 221.000 €
Související články:
- Postup koupě chorvatských realit
- Daně a poplatky - Chorvatsko nemovitosti
- Lokality pro nemovitosti - Chorvatsko
- Naše služby pro zájemce o chorvatské nemovitosti
- Situace na trhu s nemovitostmi v Chorvatsku
- Nejčastější dotazy o koupi zahraničních realit
Vyřizuje:
Violeta Borisova
+420 774 865 014
violeta.borisova@alexandriareal.cz
Mapa zobrazuje lokalitu kde se nemovitost nachází, nikoliv její přesnou adresu.