Nové řadové domy v blízkosti moře, Pag, Chorvatsko
ID nemovitosti: CHSM22-009N
Město: Novalja
Typ: Dům / Řadový
Plocha: 110.42 m2
Dispozice: 4+kk
Ložnice: 3
Cena: 430 000 €
Vyřizuje:
Violeta Borisova
+420 774 865 014
violeta.borisova@alexandriareal.cz
Podtyp nemovitosti: Řadový
Stav nemovitosti: Novostavba
Počet nadzemních podlaží: 3
Zařízen: Nezařízeno
Počet koupelen: 2
Balkón: Ano
Terasa: Ano
Parkování: Venkovní vyhrazené
Předzahrádka: Ano
Vzdálenost od moře: 200 - 500 m
Plocha pozemku: 1 m2
Popis nemovitosti
Dovolujeme si Vám nabídnout nové řadové domy v blízkosti moře v obci Novalja na ostrově Pag, jenž je s pevninou spojen mostem, v Licko-senjské oblasti v Chorvatsku. Jedná se o novostavbu celkem pěti řadových obytných objektů - tří řadových domů o třech nadzemních podlažích a dvou bočních mezonetových apartmánů (jeden o dvou nadzemních podlažích a jeden se suterénem).
Každý objekt je vybavený kvalitními materiály první třídy, koupelnami připravenými k užívání, bojlery značky Ariston, keramickou a kamennou dlažbou, klimatizací s invertorem pro vytápění i ochlazování v každém pokoji, telefonní a internetovou přípojkou (DSL), bezpečnostními vchodovými dveřmi, skleněnou zábranou s tónováním na terasách, rozvody vody v zahradách. Nemovitost je napojena na vodovodní řád a má septik. Vzdálenost do centra obce je zhruba 400 m a k moři přibližně 200 m.
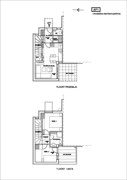
Nabízený dům S1 má celkovou plochu 110,42 m2 na třech nadzemních podlažích. V přízemí se nachází předsíň, obývací pokoj s jídelnou a kuchyňským koutem, toaleta, komora a krytá terasa. V prvním patře naleznete jednu ložnici, galerii s odpočinkovou zónou, koupelnu a balkon. Ve druhém patře máte dvě ložnice, koupelnu a krytý balkon. Nemovitosti náleží předzahrádka o rozloze 22,35 m2 a dvě vyhrazená venkovní parkovací místa.
Volné domy/apartmány v objektu ke koupi:
S1: 110,42 m2, přízemí: předsíň, obývací pokoj s jídelnou a kuchyňským koutem, komora, toaleta, krytá terasa; 1. patro: jedna ložnice, galerie s odpočinkovou zónou, koupelna, balkon; 2. patro: dvě ložnice, koupelna, krytý balkon; předzahrádka (22,35 m2), dvě parkovací místa; 430.000 €
S2: 110,42 m2, přízemí: předsíň, obývací pokoj s jídelnou a kuchyňským koutem, komora, toaleta, krytá terasa; 1. patro: jedna ložnice, galerie s odpočinkovou zónou, koupelna, balkon; 2. patro: dvě ložnice, koupelna, krytý balkon; předzahrádka (22,35 m2), dvě parkovací místa; 430.000 €
S3: 126,55 m2, přízemí: předsíň, obývací pokoj s jídelnou a kuchyňským koutem, komora, toaleta, krytá terasa; 1. patro: jedna ložnice, galerie s odpočinkovou zónou, koupelna, balkon; 2. patro: dvě ložnice, koupelna, krytý balkon, střešní terasa; předzahrádka (21,84 m2), dvě parkovací místa; 518.000 €
AP2: 117,45 m2, suterén: koupelna; přízemí: předsíň, obývací pokoj s jídelnou a kuchyňským koutem, komora, toaleta, terasa; 1. patro: dvě ložnice, koupelna, krytý balkon; předzahrádka (85,28 m2), dvě parkovací místa; 481.545 €
Související články:
- Postup koupě chorvatských realit
- Daně a poplatky - Chorvatsko nemovitosti
- Lokality pro nemovitosti - Chorvatsko
- Naše služby pro zájemce o chorvatské nemovitosti
- Situace na trhu s nemovitostmi v Chorvatsku
- Nejčastější dotazy o koupi zahraničních realit
Vyřizuje:
Violeta Borisova
+420 774 865 014
violeta.borisova@alexandriareal.cz
Mapa zobrazuje lokalitu kde se nemovitost nachází, nikoliv její přesnou adresu.