Nový apartmánový dům s bazénem a poblíž moře, Tribunj, Chorvatsko
ID nemovitosti: CHD2319K
Typ: Komerční / Hotel
Plocha: 453.3 m2
Dispozice: Větší než 9+2
Ložnice: Více jak 8
Cena: 885 000 €
Vyřizuje:
Violeta Borisova
+420 774 865 014
violeta.borisova@alexandriareal.cz
Podtyp nemovitosti: Hotel
Stav nemovitosti: Novostavba
Pozemek: 453.3 m2
Počet nadzemních podlaží: 3
Počet koupelen: 4
Sklep: Ano
Parkování: Venkovní vyhrazené
Předzahrádka: Ne
Bazén: Bazén vlastní
Výhled na moře: Ne
Vzdálenost od moře: 200 - 500 m
Plocha pozemku: 1 m2
Popis nemovitosti
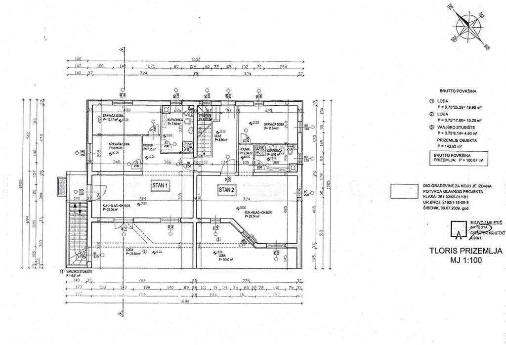
Dovolujeme si Vám nabídnout nový apartmánový dům s bazénem a poblíž moře v poklidném prostředí městečka Tribunj v Šibenické oblasti v Chorvatsku. Třípodlažní dům o ploše 453,30 m2 je podsklepen a postaven na pozemku o rozloze 674 m2. Celkem se v něm nacházejí čtyři apartmány. V suterénu jsou dvě odkládací místnosti. V přízemí se nacházejí dva apartmány: S1 se dvěma ložnicemi a terasou (25,26 m2) a S2 s jednou ložnicí a terasou (13,20 m2). Z obou dvou vede přímý vstup na nádvoří s bazénem (7,80 x 3,35 m) a terasou s BBQ. Vnitřní schodiště vede do prvního patra, kde jsou opět dva apartmány: S3 se dvěma ložnicemi a krytou terasou (17,96 m2) a S4 s jednou ložnicí a krytou terasou (17,34 m2). Z obou těchto dvou apartmánů je výhled na bazén. Ve třetím patře je podkroví ve stavu hrubé stavby a je dispozičně navrženo pro další dva apartmány. Parkování pro čtyři až šest automobilů je umožněno na dvoře. Vzdálenost do centra města je zhruba 800 m a k moři přibližně 250 m.
Brožura v PDFMapa zobrazuje lokalitu kde se nemovitost nachází, nikoliv její přesnou adresu.