Nové luxusní apartmány s výhledem na moře, Zadar, Chorvatsko
ID nemovitosti: CHSM22-108NN
Město: Grad Zadar
Typ: Byt
Plocha: 103.48 m2
Dispozice: 3+kk
Ložnice: 2
Cena: 322 184 €
Vyřizuje:
Violeta Borisova
+420 774 865 014
violeta.borisova@alexandriareal.cz
Stav nemovitosti: Novostavba
Rok výstavby: 2022
Patro: Přízemí
Počet nadzemních podlaží: 3
Zařízen: Nezařízeno
Počet koupelen: 1
Terasa: Ano
Sklep: Ano
Výtah: Ano
Parkování: Garáž
Zahrada: Ano
Vzdálenost od moře: 200 - 500 m
Plocha pozemku: 1 m2
Popis nemovitosti
Dovolujeme si Vám nabídnout nové luxusní apartmány s výhledem na moře v jedné z oblíbených čtvrtí města Zadar v Chorvatsku. Jedná se nový projekt apartmánové budovy s výtahem a celkem šesti apartmány. Budova sestává ze suterénu (garážová parkovací stání), přízemí, prvního a druhého patra. Plánovaný počátek výstavby spadá na jaro 2022 a dokončení v roce 2023. Všechnu potřebnou infrastrukturu a pláže máte v blízkosti. Vzdálenost do centra města je zhruba 2,5 km a k moři přibližně 350 m.
Všechny apartmány jsou vybavené klimatizací a podlahovým vytápěním, každému náleží dvě garážová parkovací stání. Apartmány v přízemí mají předzahrádky, z apartmánů z horního patra máte výhled na moře. Budova je napojena na vodovodní řád a má septik.
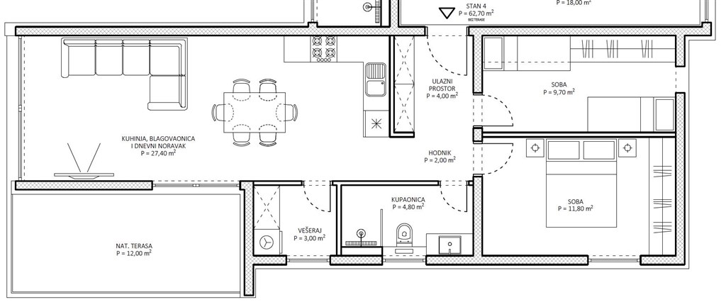
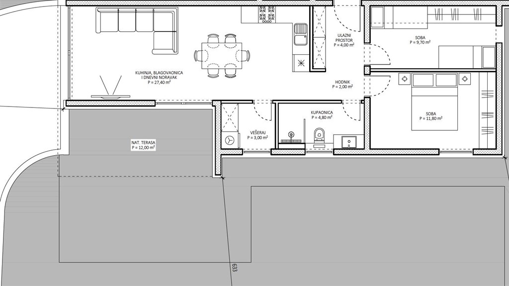
Apartmán S2 o ploše 103,48 m2 je situován v přízemí. Nachází se v něm prostorný obývací pokoj s jídelnou a kuchyňským koutem, dvě komfortní ložnice, koupelna, prádelna, chodba a terasa. Náleží mu zahrádka, sklepní kóje a dvě garážová parkovací místa v suterénu budovy.
Volné apartmány v domě ke koupi:
S2: přízemí, 103,48 m2, obývací pokoj s jídelnou a kuchyňským koutem, dvě ložnice, jedna koupelna, prádelna, terasa; zahrada, sklepní kóje, dvě garážová stání; 322.184 €
Související články:
- Postup koupě chorvatských realit
- Daně a poplatky - Chorvatsko nemovitosti
- Lokality pro nemovitosti - Chorvatsko
- Naše služby pro zájemce o chorvatské nemovitosti
- Situace na trhu s nemovitostmi v Chorvatsku
- Nejčastější dotazy o koupi zahraničních realit
Vyřizuje:
Violeta Borisova
+420 774 865 014
violeta.borisova@alexandriareal.cz
Mapa zobrazuje lokalitu kde se nemovitost nachází, nikoliv její přesnou adresu.