Na prodej stavební pozemek v atraktivní lokalitě, Rtina, Chorvatsko
ID nemovitosti: CHSM24-116N
Město: Rtina
Typ: Pozemek / Stavební bydlení
Cena: 380 000 €
Vyřizuje:
Violeta Borisova
+420 774 865 014
violeta.borisova@alexandriareal.cz
Podtyp nemovitosti: Stavební bydlení
Parkování: Není
Výhled na moře: Ano
Vzdálenost od moře: 200 - 500 m
Plocha pozemku: 1284 m2
Popis nemovitosti
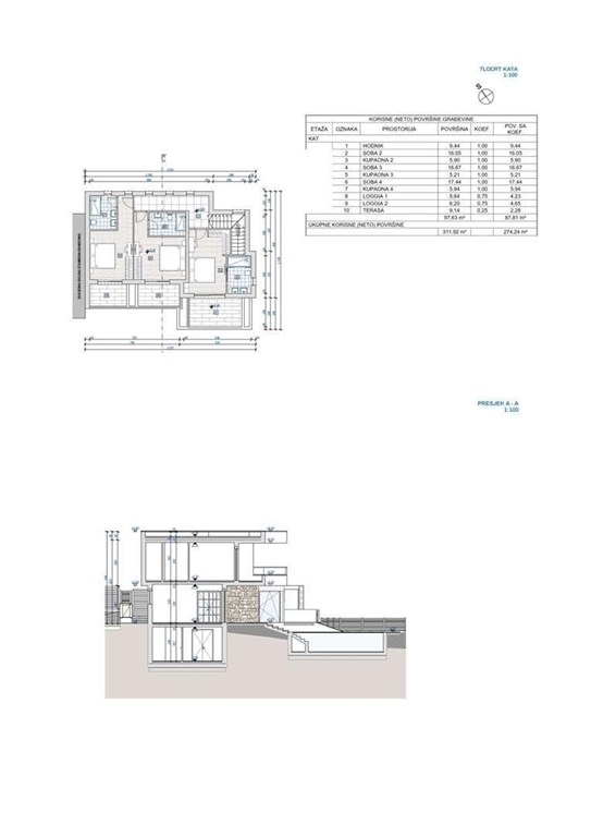
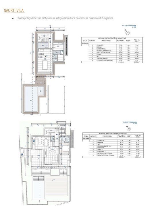
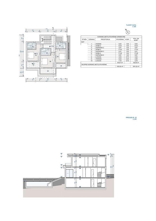
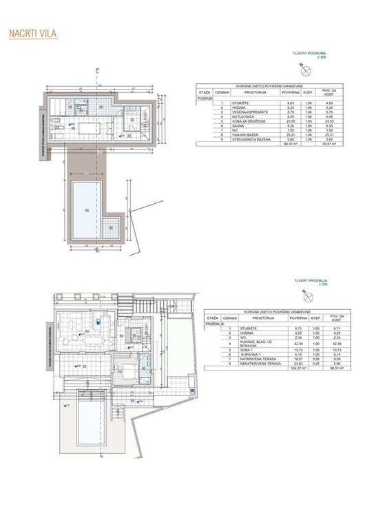
Dovolujeme si Vám nabídnout na prodej stavební pozemek v atraktivní lokalitě v obci Rtina v Zadarské oblasti v Chorvatsku. Pozemek má celkovou rozlohu 1 284 m2 a má povolení pro výstavbu dvou rekreačních vil s bazény.
Vila B bude mít rozlohu 275 m2 a vila C bude mít 290 m2. Obě vily budou sestávat ze suterénu, přízemí a 1. patra. Vily budou totožné a každá bude mít 4 ložnice s vlastními koupelnami, obývací pokoj s kuchyní a vstupem k bazénu a na terasu, 2 toalety, komoru, fitness, bazén, gril a 3-4 parkovací místa.
Pozemek se nachází v klidné tiché oblasti a nabízí výhled na moře. Je zde zaveden městský vodovodní a bioseptický systém a elektřina. Vzdálenost k moři a upravené pláži je cca 250 m.
Související články:
- Postup koupě chorvatských realit
- Daně a poplatky - Chorvatsko nemovitosti
- Lokality pro nemovitosti - Chorvatsko
- Naše služby pro zájemce o chorvatské nemovitosti
- Situace na trhu s nemovitostmi v Chorvatsku
- Nejčastější dotazy o koupi zahraničních realit
Vyřizuje:
Violeta Borisova
+420 774 865 014
violeta.borisova@alexandriareal.cz
Mapa zobrazuje lokalitu kde se nemovitost nachází, nikoliv její přesnou adresu.