Apartmánový dům nedaleko moře, Vir, Chorvatsko
ID nemovitosti: CHSM22-134N
Město: Vir
Typ: Dům / Samostatný
Plocha: 125 m2
Dispozice: 5+2
Ložnice: 4
Cena: 420 000 €
Vyřizuje:
Violeta Borisova
+420 774 865 014
violeta.borisova@alexandriareal.cz
Podtyp nemovitosti: Samostatný
Stav nemovitosti: Po rekonstrukci
Rok výstavby: 2000
Rok renovace: 2022
Počet nadzemních podlaží: 2
Počet koupelen: 3
Terasa: Ano
Parkování: Venkovní vyhrazené Garáž
Předzahrádka: Ano
Vzdálenost od moře: 500 - 1000 m
Plocha pozemku: 179 m2
Popis nemovitosti
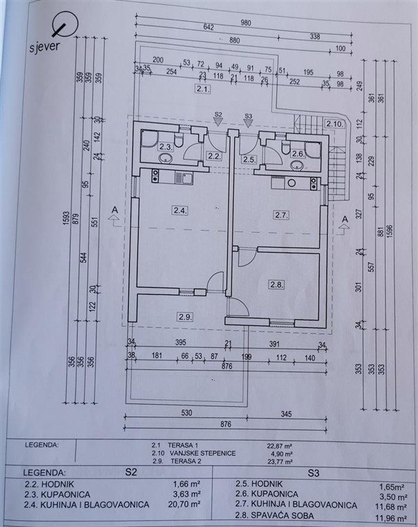
Dovolujeme si Vám nabídnout apartmánový dům nedaleko moře na ostrově Vir, jenž je s pevninou spojen mostem, v Zadarské oblasti v Chorvatsku. Dvoupodlažní dům o ploše 125 m2 byl v roce 2000 postaven na pozemku o rozloze 179 m2- Poslední renovace proběhla v roce 2022. Celkem se v něm nacházejí 3 apartmány (celkem 7 pokojů – z toho 2 obývací pokoje + 1 kuchyně + 1 studio, 3 ložnice, a 3 koupelny).
V přízemí je apartmán S1 sestávající ze dvou ložnic, obývacího pokoje s jídelnou, oddělené kuchyně, koupelny, chodby a terasy. V prvním patře naleznete dva apartmány: S2 (studio – jeden pokoj s kuchyňskou, obývací a spací částí, koupelna, předsíň) a S3 (předsíň, koupelna, obývací pokoj s jídelnou a kuchyňským koutem, jedna ložnice). Oba tyto apartmány mají vstup na společnou terasu o velikosti 23,77 m2. Do prvního patra vede samostatné venkovní schodiště, na konci kterého je terasa (22,87 m2).
Dům je vybavený klimatizací (jeden invertor pro každý apartmán), studnou na vodu a má septik. Parkovat můžete v garáži v přízemí (18,30 m2) a na venkovním místě – celkem 4 parkovací místa. Vzdálenost k moři je přibližně 870 m.
Související články:
- Postup koupě chorvatských realit
- Daně a poplatky - Chorvatsko nemovitosti
- Lokality pro nemovitosti - Chorvatsko
- Naše služby pro zájemce o chorvatské nemovitosti
- Situace na trhu s nemovitostmi v Chorvatsku
- Nejčastější dotazy o koupi zahraničních realit
Vyřizuje:
Violeta Borisova
+420 774 865 014
violeta.borisova@alexandriareal.cz
Mapa zobrazuje lokalitu kde se nemovitost nachází, nikoliv její přesnou adresu.