Na prodej polovina domu s bazénem blízko moře, Nin, Chorvatsko
ID nemovitosti: CHSM24-172N
Město: Nin
Typ: Dům / Řadový
Plocha: 147 m2
Dispozice: 5+kk
Ložnice: 4
Cena: 529 000 €
Vyřizuje:
Violeta Borisova
+420 774 865 014
violeta.borisova@alexandriareal.cz
Podtyp nemovitosti: Řadový
Stav nemovitosti: Velmi dobrý
Počet nadzemních podlaží: 2
Zařízen: Zařízeno
Počet koupelen: 4
Terasa: Ano
Parkování: Venkovní vyhrazené
Předzahrádka: Ne
Zahrada: Ano
Bazén: Bazén vlastní
Výhled na moře: Ne
Vzdálenost od moře: do 200 m
Plocha pozemku: 297 m2
Popis nemovitosti
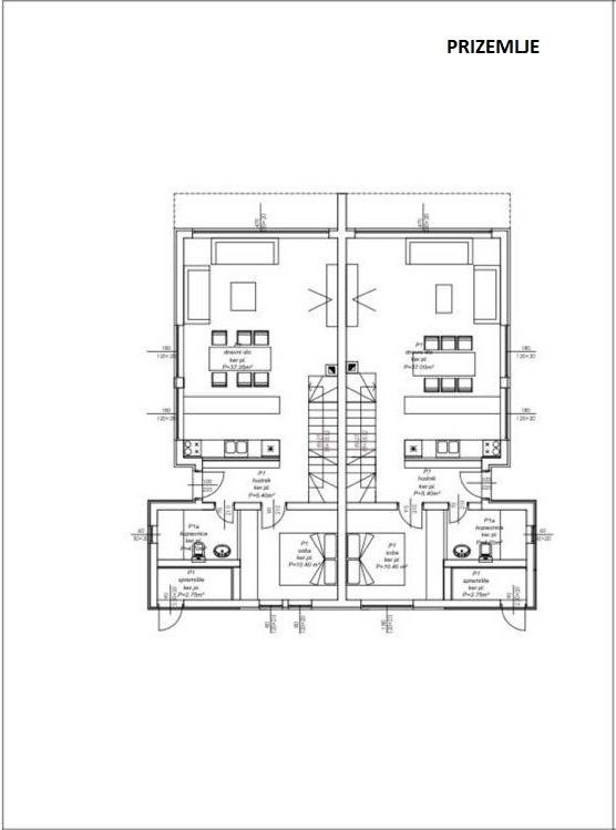
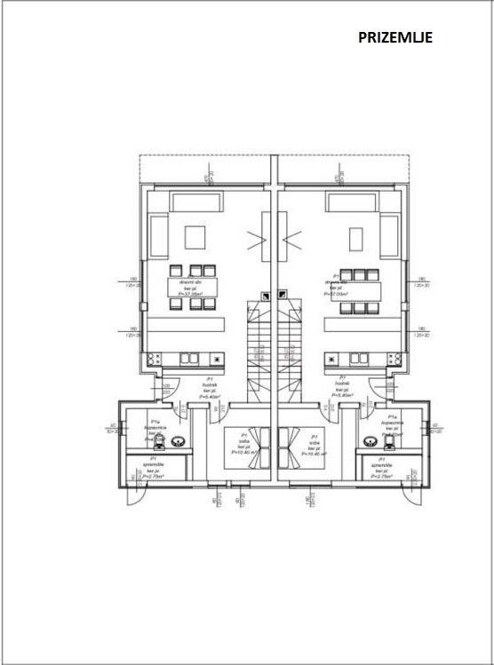
Dovolujeme si Vám nabídnout na prodej polovinu domu s bazénem v obci Nin v Zadarské oblasti v Chorvatsku. Dům o rozloze 147,06 m2 má pozemek o rozloze 297 m2.
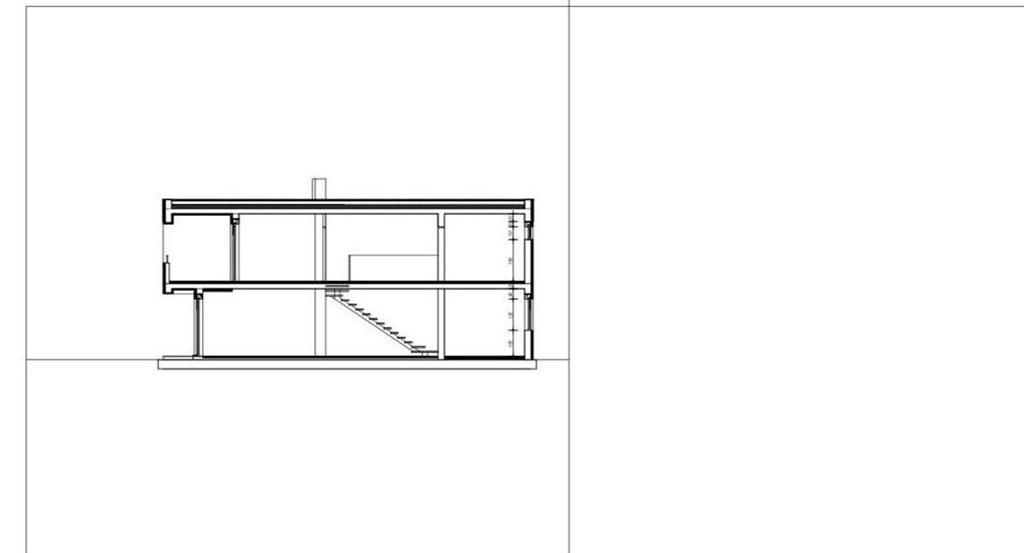
Dům sestává z přízemí a 1. patra. V přízemí je kuchyň s jídelnou a obývacím pokojem, 1 koupelna a 1 ložnice. V patře naleznete 3 ložnice s vlastními koupelnami a velkou terasu.
Na pozemku před domem je upravená zahrada o rozloze 193 m2 a bazén o ploše 18 m2 se slanou vodou a automatickou regulací soli a pH.
Dům se prodává kompletně vybavený, má klimatizaci, podlahové vytápění, tepelné čerpadlo a bezpečnostní dveře. Je připojený na vodovodní i kanalizační řád. Dům se nachází v klidné oblasti, poblíž veškeré potřebné vybavenosti, přibližně 500 m od centra města a asi 120 m od moře.
Související články:
- Postup koupě chorvatských realit
- Daně a poplatky - Chorvatsko nemovitosti
- Lokality pro nemovitosti - Chorvatsko
- Naše služby pro zájemce o chorvatské nemovitosti
- Situace na trhu s nemovitostmi v Chorvatsku
- Nejčastější dotazy o koupi zahraničních realit
Vyřizuje:
Violeta Borisova
+420 774 865 014
violeta.borisova@alexandriareal.cz
Mapa zobrazuje lokalitu kde se nemovitost nachází, nikoliv její přesnou adresu.