Na prodej nový a prostorný apartmán s částečným výhledem na moře, s 2 ložnicemi, Vir, Chorvatsko
ID nemovitosti: CHSM24-147N-AS2
Město: Vir
Typ: Byt
Plocha: 85 m2
Dispozice: 3+kk
Ložnice: 2
Cena: 330 000 €
Vyřizuje:
Violeta Borisova
+420 774 865 014
violeta.borisova@alexandriareal.cz
Stav nemovitosti: Výstavba
Rok výstavby: 2024
Patro: 1. patro
Počet nadzemních podlaží: 3
Zařízen: Nezařízeno
Počet koupelen: 2
Terasa: Ano
Parkování: Venkovní vyhrazené
Vzdálenost od moře: do 200 m
Popis nemovitosti
Dovolujeme si Vám nabídnout na prodej nový apartmán s 2 ložnicemi na ostrově Vir v Zadarské oblasti v Chorvatsku. Jedná se o komplex tří rezidenčních budov ve výstavbě. Každá budova sestává z přízemí a dvou pater a celkem 3 bytových jednotek na každém podlaží je jeden apartmán. Dokončení budov A a B je naplánováno na začátek roku 2025 a dokončení budovy C na podzim roku 2025.
Apartmány budou vybaveny klimatizací v ložnicích a obývacím pokoji, elektrickým podlahovým vytápěním v koupelnách, bezpečnostními dveřmi, budou mít keramiku v celém apartmánu i na terasách, elektrické žaluzie, sítě proti komárům, interkom a LED osvětlení v apartmánu i na terasách. Nábytek v koupelnách bude vyrobený na míru a všechny terasy budou mít přípravu na jacuzzi (přívod i odvod vody). Vzdálenost od moře je přibližně 200 m.
K apartmánu v 1. patře náleží 2 parkovací stání.
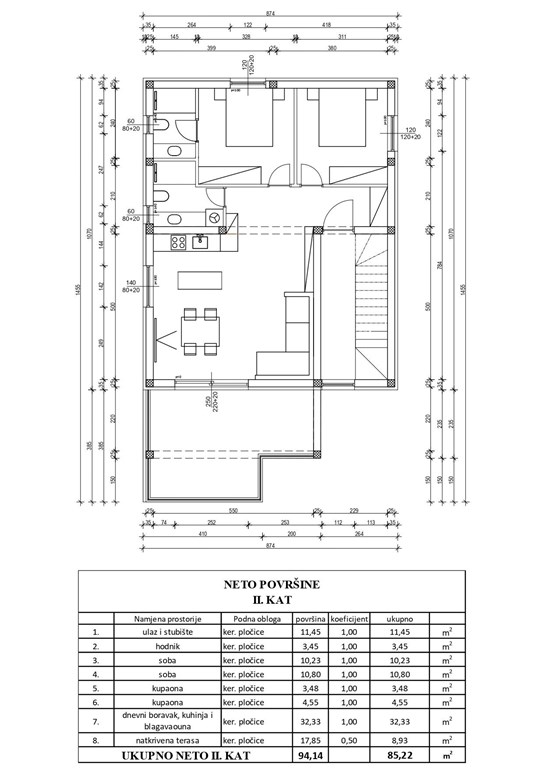
Nabízený apartmán AS2 o rozloze 81,08 m2 je situovaný v 1. patře budovy A. Sestává z chodby, 2 ložnic, 2 koupelen, obývacího pokoje s kuchyní a jídelnou, komory a kryté terasy.
Další apartmány ke koupi v komplexu rezidenčních budov naleznete na našich webových stránkách pod ID: CHSM24147N.
Související články:
- Postup koupě chorvatských realit
- Daně a poplatky - Chorvatsko nemovitosti
- Lokality pro nemovitosti - Chorvatsko
- Naše služby pro zájemce o chorvatské nemovitosti
- Situace na trhu s nemovitostmi v Chorvatsku
- Nejčastější dotazy o koupi zahraničních realit
Vyřizuje:
Violeta Borisova
+420 774 865 014
violeta.borisova@alexandriareal.cz
Mapa zobrazuje lokalitu kde se nemovitost nachází, nikoliv její přesnou adresu.