Na prodej nový řadový dům ve středomořském stylu s bazénem v blízkosti moře, Jezera, ostrov Murter, Chorvatsko
ID nemovitosti: CHLM1022-S1
Město: Jezera
Typ: Dům / Řadový
Plocha: 115 m2
Dispozice: 4+kk
Ložnice: 3
Cena: 635 130 €
Vyřizuje:
                            Violeta Borisova
                +420 774 865 014
                violeta.borisova@alexandriareal.cz
Podtyp nemovitosti: Řadový
Stav nemovitosti: Novostavba
Rok výstavby: 2025
Počet nadzemních podlaží: 2
Počet koupelen: 2
Terasa: Ano
Parkování: Venkovní vyhrazené
Zahrada: Ano
Vzdálenost od moře: 500 - 1000 m
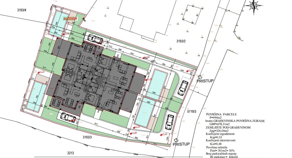
Plocha pozemku: 200 m2
Popis nemovitosti
Dovolujeme si Vám nabídnout na prodej velmi pěkný nový řadový dům s bazénem v klidné lokalitě městečka Jezera na ostrově Murter, který je s pevninou spojený mostem v Šibenické oblasti v Chorvatsku.
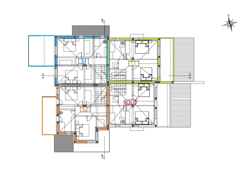
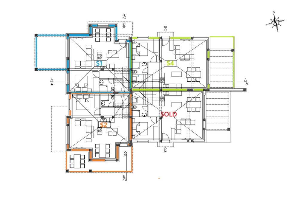
Dům s celkovou užitnou plochou 115,95 m2 má dvě podlaží. Přízemí sestává z chodby, koupelny, ložnice a otevřeného obývacího pokoje s kuchyní a jídelnou s přístupem na terasu a bazén o velikosti 23,76 m2. V 1. patře se nacházejí dvě ložnice (jedna z nich s terasou), koupelna, úložný prostor. Na pozemku je jedno parkovací stání.
Dům se staví z velmi kvalitních stavebních materiálů. Na oknech budou moskytiéry, kvalitní keramická dlažba, podlahové vytápění v koupelnách. Dvůr je kompletně oplocený. 
Dům je napojený na vodovodní řád, od  pláže je vzdálený 700 m a od centra města 550 metrů. 
Související články:
- Postup koupě chorvatských realit
 - Daně a poplatky - Chorvatsko nemovitosti
 - Lokality pro nemovitosti - Chorvatsko
 - Naše služby pro zájemce o chorvatské nemovitosti
 - Situace na trhu s nemovitostmi v Chorvatsku
 - Nejčastější dotazy o koupi zahraničních realit
 
Vyřizuje:
                                    Violeta Borisova
                    +420 774 865 014
                    violeta.borisova@alexandriareal.cz
Mapa zobrazuje lokalitu kde se nemovitost nachází, nikoliv její přesnou adresu.