Na prodej nový útulný dům (polovina dvojdomku) se 4 ložnicemi blízko moře a pláže, Vodice, Chorvatsko
ID nemovitosti: CHLM1074
Město: Vodice
Typ: Dům / Řadový
Plocha: 160 m2
Dispozice: 5+kk
Ložnice: 4
Cena: 580 000 €
Vyřizuje:
Violeta Borisova
+420 774 865 014
violeta.borisova@alexandriareal.cz
Podtyp nemovitosti: Řadový
Stav nemovitosti: Novostavba
Rok výstavby: 2024
Počet nadzemních podlaží: 2
Zařízen: Nezařízeno
Počet koupelen: 2
Terasa: Ano
Parkování: Venkovní vyhrazené
Předzahrádka: Ne
Zahrada: Ano
Výhled na moře: Ano
Vzdálenost od moře: 500 - 1000 m
Plocha pozemku: 210 m2
Popis nemovitosti
Dovolujeme si Vám nabídnout na prodej nový útulný řadový dům (polovina dvojdomku) v blízkosti moře a pláže v obci Vodice v Šibenické oblasti v Chorvatsku.
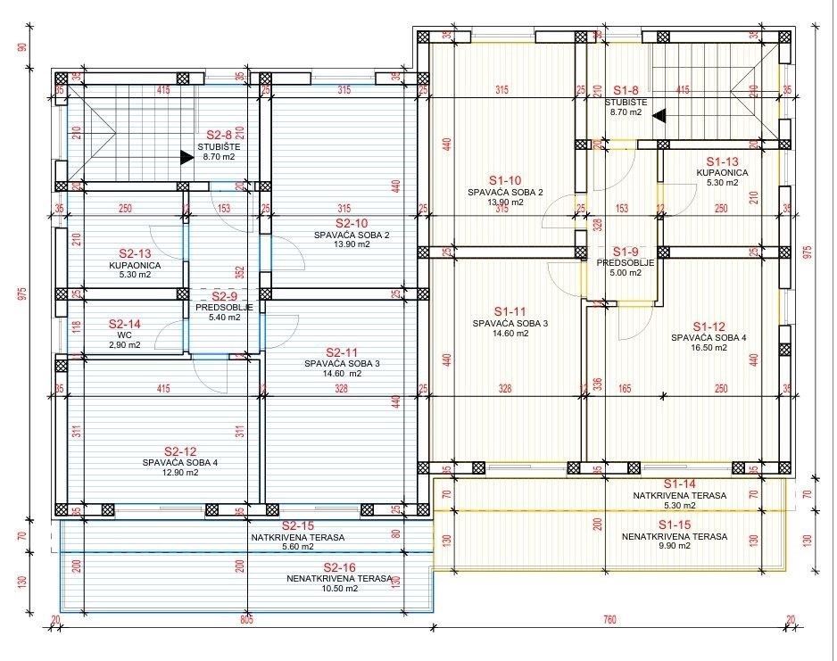
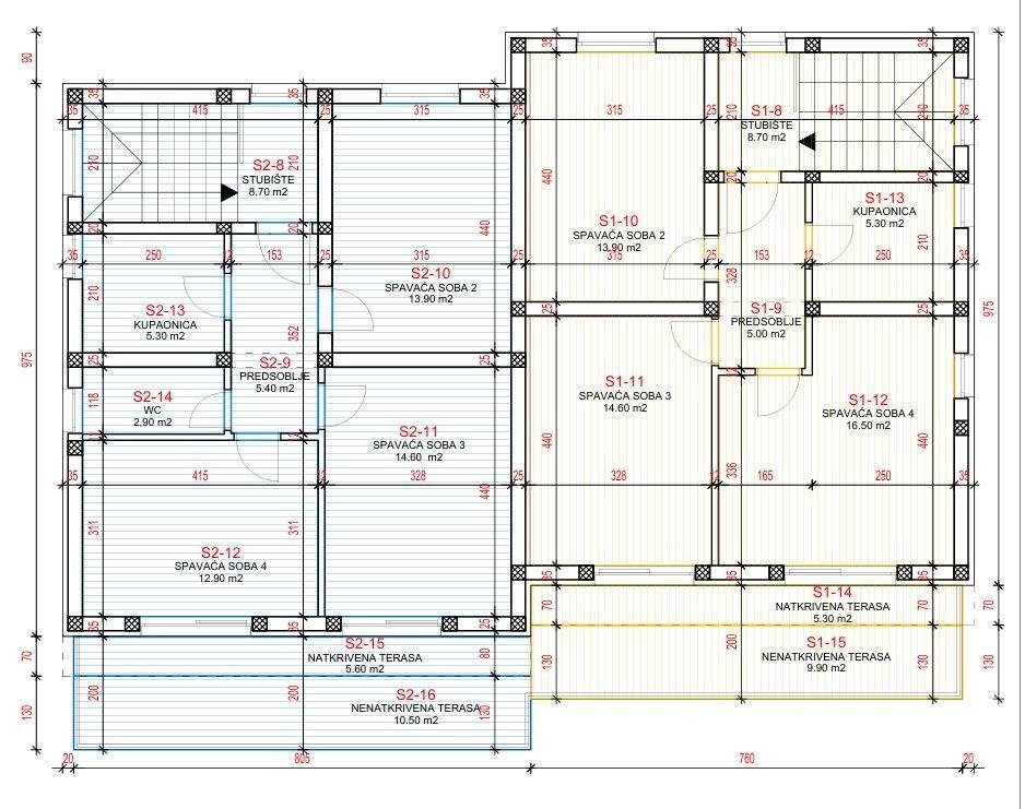
Řadový dům má dvě podlaží a celkovou užitnou plochu 160, 12 m2 . V přízemí se nachází chodba, koupelna, úložný prostor, velký obývací pokoj s kuchyní a jídelnou se vstupem na zahradu o rozloze 145,75 m2. Vnitřní schodiště vede do prvního patra kde se nacházejí tři ložnice, koupelna, toaleta, chodba a terasa.
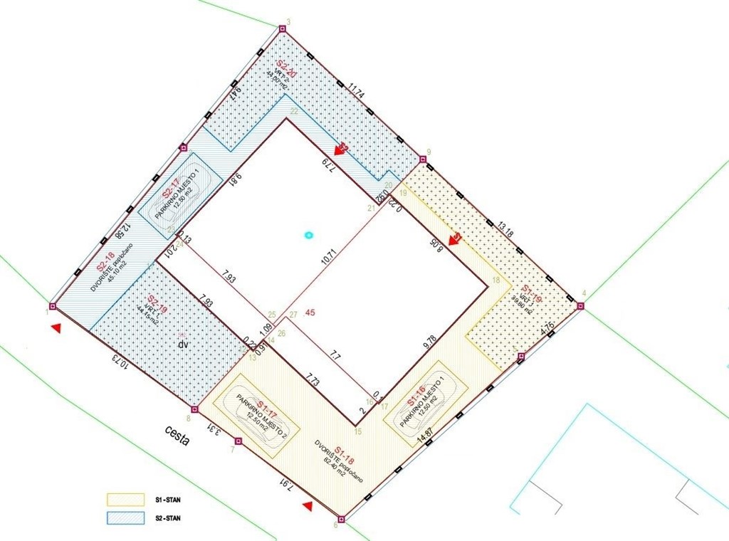
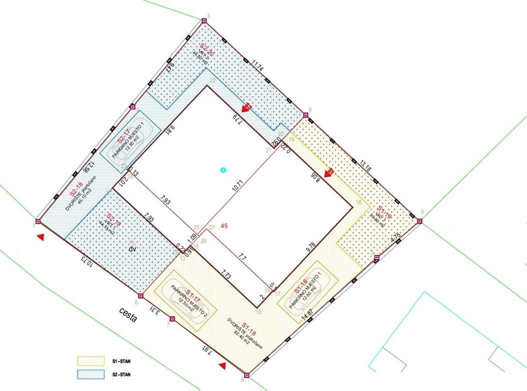
Dům byl postaven z velmi kvalitních stavebních materiálů. V koupelnách je podlahové vytápění, klimatizace ve všech ložnicích a obývacím pokoji, elektrické rolety, moskytiéry, 10 cm termofasáda, dvůr je oplocený. Na pozemku jsou 2 parkovací stání.
Dům je napojený na vodovodní řád, nachází se v pěkné lokalitě, pouhých 600 m od oblázkové pláže a moře a 1400 m od centra města.
Související články:
- Postup koupě chorvatských realit
- Daně a poplatky - Chorvatsko nemovitosti
- Lokality pro nemovitosti - Chorvatsko
- Naše služby pro zájemce o chorvatské nemovitosti
- Situace na trhu s nemovitostmi v Chorvatsku
- Nejčastější dotazy o koupi zahraničních realit
Vyřizuje:
Violeta Borisova
+420 774 865 014
violeta.borisova@alexandriareal.cz
Mapa zobrazuje lokalitu kde se nemovitost nachází, nikoliv její přesnou adresu.