Na prodej atraktivní stavební pozemek se stavebním povolením, 180 m od pláže, Srima, Chorvatsko
ID nemovitosti: CHLM7013
Město: Srima
Typ: Pozemek / Stavební bydlení
Cena: 180 000 €
Vyřizuje:
Violeta Borisova
+420 774 865 014
violeta.borisova@alexandriareal.cz
Podtyp nemovitosti: Stavební bydlení
Předzahrádka: Ne
Výhled na moře: Ne
Plocha pozemku: 404 m2
Popis nemovitosti
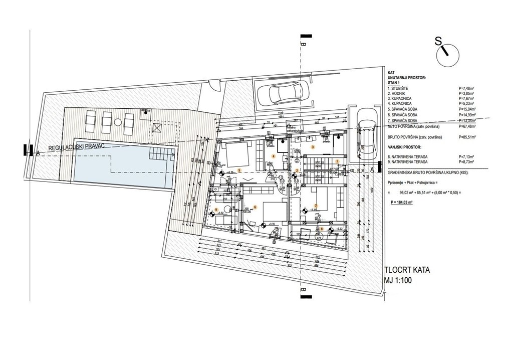
Dovolujeme si Vám nabídnout na prodej atraktivní stavební pozemek o rozloze 404 m2 pouhých 180 m od pláže v obci Srima v Šibenické oblasti v Chorvatsku.
Pozemek je pravidelného tvaru, rovinatý a ze tří stran obehnaný betonovou zdí, přičemž veškerá veřejná infrastruktura se nachází v bezprostřední blízkosti. Na pozemek bylo vydáno stavební povolení pro výstavbu samostatně stojící budovy (přízemí + první patro) o celkové ploše 157 m2 s bazénem o rozloze 27 m2. Stavba objektu může začít ihned. Pozemek se nachází 180 m od moře a 450m od centra obce.
Pro více informací nás neváhejte kontaktovat. Rádi Vám poskytneme kompletní servis spojený s koupí a přepisem nemovitosti, tak abyste mohli bez problému zakoupit.
Související články:
- Postup koupě chorvatských realit
- Daně a poplatky - Chorvatsko nemovitosti
- Lokality pro nemovitosti - Chorvatsko
- Naše služby pro zájemce o chorvatské nemovitosti
- Situace na trhu s nemovitostmi v Chorvatsku
- Nejčastější dotazy o koupi zahraničních realit
Vyřizuje:
Violeta Borisova
+420 774 865 014
violeta.borisova@alexandriareal.cz
Mapa zobrazuje lokalitu kde se nemovitost nachází, nikoliv její přesnou adresu.