Nový řadový dům jen 60 m od moře, Starigrad, Chorvatsko
ID nemovitosti: CHSM22-107N
Město: Starigrad
Typ: Dům / Řadový
Plocha: 341.86 m2
Dispozice: 9+1
Ložnice: 8
Cena: Cena na vyžádání
Vyřizuje:
Violeta Borisova
+420 774 865 014
violeta.borisova@alexandriareal.cz
Podtyp nemovitosti: Řadový
Stav nemovitosti: Projekt
Rok výstavby: 2022
Počet nadzemních podlaží: 1
Zařízen: Nezařízeno
Počet koupelen: 4
Terasa: Ano
Parkování: Venkovní vyhrazené
Zahrada: Ano
Bazén: Bazén vlastní
Výhled na moře: Ano
Vzdálenost od moře: do 200 m
Plocha pozemku: 826 m2
Popis nemovitosti
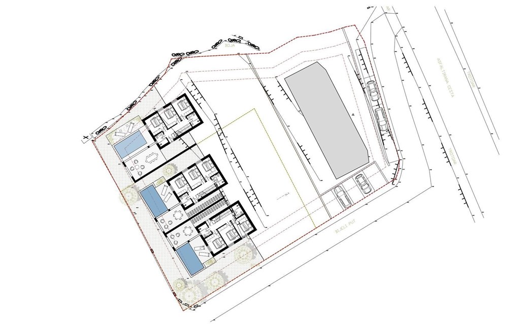
Dovolujeme si Vám nabídnout nový řadový dům jen 60 m od moře ve městě Starigrad v Zadarské oblasti v Chorvatsku. Celková plocha domu je 341,86 m2 a jedná se o celý dvojdomek (suterén + přízemí), který je rozdělen na dva apartmány. Jelikož je pozemek svažitý, i v suterénu máte dostatek denního světla. Celkem se v nemovitosti nachází 10 pokojů – z toho 2 obývací pokoje a 8 ložnic, a 4 koupelny. Dispozice 5+kk pro každou polovinu dvojdomku. Rozloha celého pozemku činí 826 m2, pro každou polovinu dvojdomku tedy připadá 400 m2 pozemku.
Apartmán A/polovina dvojdomku A má tuto dispozici: suterén (52,44 m2) – tři ložnice, koupelna, toaleta, prádelna a chodba. Z chodby projdete na otevřenou terasu (13,80 m2) s bazénem (21 m2) a k druhé terase (14,91 m2), kterou stíní pergola. Vnitřní schodiště vede do přízemí (68,22 m2), kde naleznete vstupní halu, předsíň, jednu ložnici, koupelnu, technickou místnost a obývací pokoj s jídelnou a kuchyňským koutem. Z obývacího pokoje projdete na krytou terasu (18,78 m2). U hlavního vchodu do apartmánu/domu máte úložný a odkládací prostor/komoru (2,78 m2). Půdorys apartmánu B/poloviny dvojdomku B je zcela stejný včetně výměry, pouze zrcadlově obrácený.
Každému apartmánu náleží dvě vyhrazená venkovní parkovací místa. Nemovitost je vybavená klimatizací a podlahovým vytápěním. Z domu máte výhled na moře. Vzdálenost do centra města je zhruba 50 m a k moři přibližně 60 m.
Související články:
- Postup koupě chorvatských realit
- Daně a poplatky - Chorvatsko nemovitosti
- Lokality pro nemovitosti - Chorvatsko
- Naše služby pro zájemce o chorvatské nemovitosti
- Situace na trhu s nemovitostmi v Chorvatsku
- Nejčastější dotazy o koupi zahraničních realit
Vyřizuje:
Violeta Borisova
+420 774 865 014
violeta.borisova@alexandriareal.cz
Mapa zobrazuje lokalitu kde se nemovitost nachází, nikoliv její přesnou adresu.