Na prodej luxusní apartmán s bazénem v 1. řadě u moře, NinZaton, Chorvatsko
ID nemovitosti: CHSM25-032N
Město: Nin
Typ: Byt
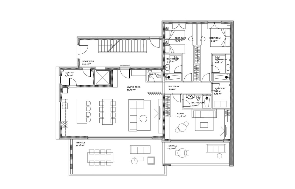
Plocha: 237 m2
Dispozice: 4+kk
Ložnice: 3
Cena: 1 615 000 €
Vyřizuje:
Violeta Borisova
+420 774 865 014
violeta.borisova@alexandriareal.cz
Stav nemovitosti: Výstavba
Rok výstavby: 2025
Patro: Přízemí
Počet nadzemních podlaží: 3
Zařízen: Nezařízeno
Počet koupelen: 3
Terasa: Ano
Výtah: Ano
Parkování: Venkovní vyhrazené
Předzahrádka: Ano
Zahrada: Ano
Bazén: Bazén vlastní
Výhled na moře: Ano
Vzdálenost od moře: 1. řada
Popis nemovitosti
Dovolujeme si Vám nabídnout na prodej luxusní apartmán ve výstavbě s bazénem v 1. řadě v Zatonu v Zadarské oblasti v Chorvatsku.
Apartmán S1 o ploše 237 m2 je umístěný v přízemí budovy a sestává z chodby, spižírny, prádelny, 3 ložnic, z nichž jedna je řešena jako garsonka (může sloužit i jako pokoj) se vstupem na krytou terasu a velmi prostorného obývacího pokoje s kuchyní a jídelnou se vstupem na druhou krytou terasu. Z obou teras je přístup na bazén a zahradu kde naleznete venkovní sprchu, grill.
Budova se staví z velmi kvalitního stavebního materiálu, konstrukce je železobetonová, izolace je z 10 cm stiroporu a kamenné vlny, v pokojích je podlahové vytápění, klimatizace Mitsubishi v obývacím pokoji a ložnicích s možnosti dálkového ovládání, luxusní interiérové dveře bez zárubně, elektrické žaluzie a moskytiéry, posuvné žaluzie na terasách, luxusní kamerový systém, vyhřívaný bazén se slanou vodou. Sanitní vybavení v koupelnách je nejvyšší třídy od značek Villeroy&Boch Hansgrohe. Pro zajištění soukromí je mezi apartmány instalovaná dodatečná zvuková a tepelná izolace Thermotech. K apartmánu náleží 2 prostorná parkovací stání s nabíječkou pro elektromobily. Plánovaný termín dokončený výstavby je konec roku 2025. Od moře a pláže je budova vzdálená 10 m.
Související články:
- Postup koupě chorvatských realit
- Daně a poplatky - Chorvatsko nemovitosti
- Lokality pro nemovitosti - Chorvatsko
- Naše služby pro zájemce o chorvatské nemovitosti
- Situace na trhu s nemovitostmi v Chorvatsku
- Nejčastější dotazy o koupi zahraničních realit
Vyřizuje:
Violeta Borisova
+420 774 865 014
violeta.borisova@alexandriareal.cz
Mapa zobrazuje lokalitu kde se nemovitost nachází, nikoliv její přesnou adresu.